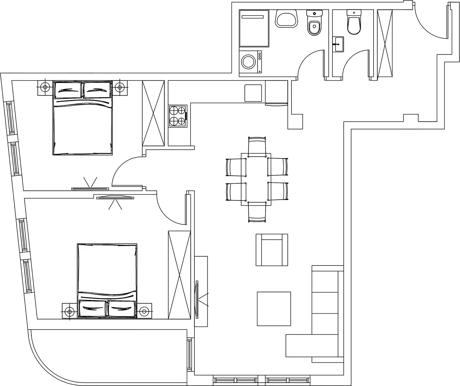
Trosoban stan 76.88 m2

Sprat: I, II, III, IV

Trosoban stan od 76 m² poseduje prostran dnevni boravak povezan sa trpezarijom, uz funkcionalno odvojenu kuhinju; dve spavaće sobe uključuju master sobu sa sopstvenim kupatilom, dok drugo kupatilo dodatno podiže komfor. Posebna vešernica značajno olakšava održavanje doma i predstavlja retku pogodnost u ovoj kvadraturi.

Zahvaljujući promišljenom rasporedu i modernom pristupu, stan je odličan izbor za parove koji trebaju više prostora ili malu porodicu.

Stan sadrži:

  • Dve spavaće sobe uključujući master sa privatnim kupatilom
  • Dva potpuno opremljena kupatila
  • Odvojenu vešernicu za dodatnu praktičnost
  • Prostran i svetao dnevni boravak

Struktura stana

Ukupno

76.88 m²

1

Ulaz

7.66 m²

2

Toalet

1.98 m²

3

Kupatilo

4.32 m²

4

Kuhinja

4.49 m²

5

Dnevna soba i trpezarija

26.57 m²

6

Degažman

1.43 m²

7

Spavaća soba 1

10.90 m²

8

Spavaća soba 2

14.15 m²

9

Terasa

5.38 m²

Pregled ostalih stanova

Površina: 59.44 m2

Tip: Dvoiposoban

Sprat: I, II, III, IV

Površina: 64.19 m2

Tip: Trosoban

Sprat: I, II, III, IV

Površina: 73.56 m2

Tip: Trosoban

Sprat: I, II, III, IV

Ne čekajte

Kontaktirajte nas

Za sve upite ili dodatne informacije, stojimo vam na raspolaganju putem kontakta u nastavku.

Telefon 2

Adresa

Vojvode Prijezde 14, Beograd